Final Thesis academic work
Urban Catalogue to Build a Custom Neighborhood
[Collaboration with Luis Basabe and Luis Pancorbo. Madrid. 2015]
Introduction
The project is situated in the suburbia of Madrid. After a research and interviews, the feeling we got was that suburban houses are all similar and nobody wants to do anything out of the ordinary.
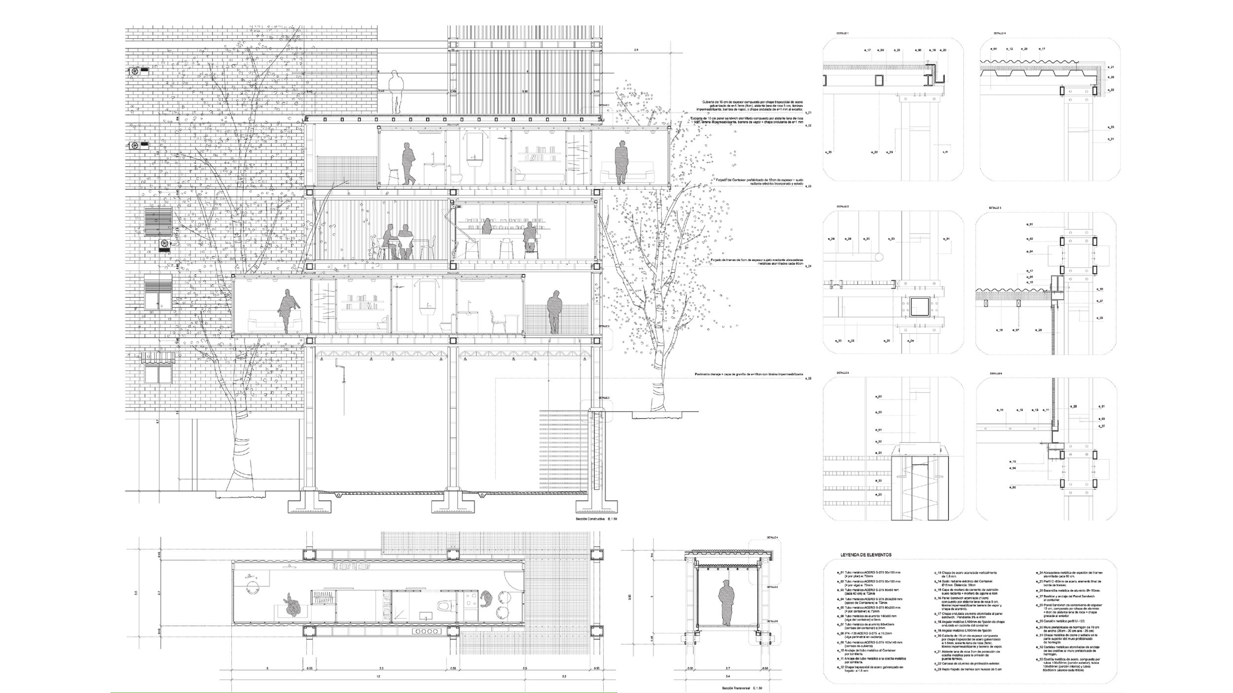
Idea
The projects are separate boxes linked by shared spaces. In the same building different programs can be placed. These are all ruled by planning rules. It is like a mini-village that gives people all they need. All the houses have a private outside space and some of them have a roof terrace linked to the bedroom upstairs. Downstairs, they have a kitchen, dining room and a second bedroom. The building blocks are very simple, containers, no complexity in the geometry. The complexity comes on how smart are integrated in the grid. In the middle points, people come to eat, meet and drink. The idea is to have a balance between the private and the communal space.





